一、產品用途、結構 Application & Structure
本機主要用于紡織行業濾塵系統中的纖維收集,可以從含塵氣流中將纖維分離出來并進行回收。機器主要由減速器、擠棉螺桿、進風筒、錐形網筒、出風筒和電氣控制箱等部件組成。
It is used to collect the fiber in dust filter system in textile industry. It can separate the fiber from the air flow which contains dust.
It consists of speed reducer, feed screw rod, air inlet drum, cone net drum, air outlet drum and electrical control cabinet.
二、主要規格的技術參數 Main Specification
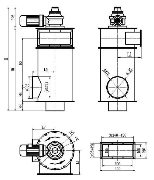
機器的安裝形式為懸掛式和支撐式。具體外形安裝尺寸見(圖一)。
It can be divided into suspending and supporting types based on installation. Please refer to drawing 2
|
型 號 Type |
LFU 042-150 |
LFU 042-200 |
|
網筒過濾面積 |
0.69 |
1.16 |
|
最大處理風量 |
4000 |
5500 |
|
最大纖維收集量 |
100 |
125 |
|
螺桿工作轉向(見圖二) |
Left |
Left |
|
螺桿轉速 |
19 |
19 |
|
配減速機功率 |
0.55 |
0.75 |
|
配風機電機功率 |
4 |
5.5 |
|
機器重量 |
about 150 |
about 280 |
三、 工藝條件 Technical conditions
1、 機器要求在負壓下運行。
Machine should run under negative air pressure.
2、 如處理化纖、毛紡等長纖維時,需采取間隙運行方式,此訂貨時需說明。
Upon the long fibers such as chemical fiber and wool, the intermittent running method should be used. It should be stated clearly at the time of purchase.
四、 機器的安裝與調整 Installation and Adjustment
進、出風管的相對位置可以進行調整,通過拆下進、出風筒的連接螺栓,然后轉動筒體來改變相對位置。
機器懸掛在墻上或架子上,一般應有預留孔,當機器到位后再填入混凝土。亦可在墻上打穿孔,用鋼板條作背墊與機器的滑槽用雙頭螺栓夾緊在墻上。墻上的孔的直徑為18-22mm,機器安裝時,上下位置的調整可擰松滑槽螺栓做少量的調整。
機器出廠時已調整好,如果需要調整螺桿與剝棉條的間隙時,可按以下方法調整:將爪形墊圈的齒爪從螺母槽中退出,旋動螺母,調整螺桿的上下位置。檢查螺桿與錐形網筒上銅剝棉條的間隙。螺桿不能嵌進剝棉條,允許局部輕微接觸,其間細為0.235-2mm,調整完畢后,將吊緊螺栓擰緊,爪形墊圈的齒嵌入圓螺母的槽中。
Relative position of air inlet and outlet pipes can be adjusted. It can be achieved by disassembling the jointing bolt of air inlet and outlet pipes then turning the body of pipe.
When the machine hangs at the wall or framework, a hole should be prepared in advance. After the machine is installed properly, then add the concrete. On the other hand, it can be achieved by another method. Drill a hole at the wall. The grooves of the machine are kept firmly at the wall by stud as well as steel plate as the back pad. The diameter of the hole in the wall is 18-22mm.Upon the installation of the machine, the upper and down positions can be adjusted slightly through tightening up or down the bolt of the groove.
When the machine is delivered from the company, usually the adjustment is in good condition. If it is necessary to adjust the gap between the screw rod and stripping rail, please follow the following method. Take the rack of the jaw pad out of the nut channel. Adjust the upper and down position of the screw rod through rotating the nut. Check the gap between the screw rod and the copper stripping rail at the cone net drum. Screw rod cannot be inlaid into the stripping rail. Local connection lightly is allowable. Its gap is 0.235-2mm. When the adjustment is finished, tighten up the bolt. The tooth of the jail pad is inlaid into the channel of the round nut.

(圖一)
LFU042 型纖維壓緊器外形圖 Fiber Separator Outline
|
型號type |
H |
H1 |
H2 |
H3 |
H4 |
D |
D1 |
D2 |
L1 |
L2 |
|
150 |
1370 |
1090 |
647 |
192 |
120 |
520 |
450 |
300 |
295 |
295 |
|
200 |
1470 |
1190 |
747 |
192 |
120 |
655 |
585 |
300 |
363 |
363 |
五、機器的操作運轉 Operation of this machine
1、 開車前,應檢查設備是否完好,各部分零件是否松動。
Before operation, check the machine and ensure it is in the good condition and all parts are tightened.
2、 檢查減速器的油標,油面線應在油標孔的2/3位置處,潤滑為機械油N32(40°C時的運動黏度為32mm2/S)。
Check the oil line of the decelerator. Oil surface line should be in the 2/3 position of the oil line hole. Lubrication should use mechanical oil N32(run viscosity is 32mm2/s upon 32oC)
3、 電氣部分:電源開關Q用于電源的通斷,控制開關(SB3)用于自動和手動選擇。置于自動位置時,電氣連續運行,(SB3)置于手動位置時,控制機器的正轉點動與反轉點動。
Electric Parts: Power switch(Q) is to control the on and off of the power. Control switch (SB3) is to choose automatic or manual operation. If it is in the automatic position, machine will be in continuous working condition. If it is in the manual position, control the machine to run at the clockwise or anti-clockwise revolving.
4、 本機與其他設備配套使用并進行集中控制時,電氣電氣調試按相關的機組電氣調試說明書和參照相關的電氣原理圖進行。
If this separator is used with other equipments and are controlled together, electric debug is in accordance with the related electric adjustment instruction and electric principle chart.
5、 機器的試運行:首先檢查機器的接線是否良好,各元件有無損壞,檢查完畢,接通電源,置(SB3)手動狀態,按正轉點動按鈕(SB4),本機螺旋葉片逆時針方向旋轉(見附圖),按反轉點動按鈕(SB5),本機螺旋葉片反方向旋轉,如不是,則交換電動機兩根接線。手動工作狀態,風機不工作,置(SB3)于自動位置上,按下啟動按鈕(SB2),本機與風機同時啟動并開始工作。注意:風機轉向應正確。
The trial run: First of all, check and ensure that all circuits are in good condition and all components have no damage. Then turn on the power source. Put (SB3) in manual position. Spiral blade of the separator revolves at the anti-clockwise direction (see attached chart). Press (SB5), spiral blade of the separator revolves at the opposite direction. Otherwise, exchange any two among the three phase lines of the electric motor. If in the manual condition, the fan will be out of work. Turn (SB3) in the manual position and press (SB2), the separator and fan will be launched simultaneously and start to work. Attention: The revolving direction of the fan should be correct.
六、機器的維護保養 Maintenance
每天觀察纖維排出過程是否暢通(二次以上);每周清潔一次內外筒,去除留在網筒內的纖維或雜質,以保證網筒暢通。
定期檢查減速器是否有異常響聲,如有,則應更換機械零件,檢查減速器輸出軸下部的滲漏情況,如有,則應更換密封件或修理。檢查減速器油位線,正常情況應是油標窗高度的1/3-2/3,如低于此高度,則要加油。
檢查擠棉螺桿與網筒上剝棉條的間隙,若剝棉條有嚴重磨損或凹坑,則應更換或調整,調整方法參照(六)進行。
每年,上述內容全做一遍,檢查機器各結合部件是否緊固,如松動,則應將螺栓擰緊。
檢查減速器密封及軸承的磨損情況,如磨損較大或損壞則應進行調換。
清洗減速器及更換潤滑油。將減速器卸下并拆下蓋板,油放盡。用火油進行清洗,清洗完畢后加油。油的牌號為:機械油N32(40°C時的運動黏度為32mm2/S)。在檢查和清洗減速器時,請特別注意圓錐齒輪的嚙合情況。
Every day check and ensure that discharging process of the fiber is smooth at least 2 times. Clean up the inner and outer drums once per week. Remove the fiber or contaminations in the net drum to ensure that net hole is smooth.
Check and ensure that speed decelerator does not have the abnormal noise regularly. If it has, replace the mechanical parts and check whether the discharge axle’s down end of the decelerator is leaked oil or not. If leakage happens, change the seal or repair. Check the oil line of the decelerator which usually should be in the 1/2-2/3 of the oil division mark’s height. If under this height, add the oil.
Check the gap between feed screw rod and striping rail at the net drum. If the striping rail is seriously worn or has cavities, replace with another one or repair. Repair method is in accordance with above mentioned in item 6.
Every year the above mentioned check should be done fully. Check and ensure that all parts of the machine are tightened. If relaxed, tighten up the bolt.
Check and ensure that the seal and gear of the decelerator is not worn. If they are worn seriously or damaged ,replace a new one.
Clean the decelerator and replace the lubrication oil. Lift the decelerator off and take off the cover. Discharge all the oil. Clean the decelerator with kerosene. After the cleaning completes, add the oil. Oil brand should be mechanical oil N32((run viscosity is 32mm2/s upon 32oC). Upon check and clean the decelerator, it is very important to notice the tooth matching of the cone gear.
七、故障及排除 Malfunction and troubleshooting
|
故障 Fault |
原因Cause |
修理 Repair |
|
電機不轉Motor doesn’t run |
|
|
|
沒有纖維排出 |
|
|
|
網筒糊網 Net drum pasted |
|
Adjust the gap as per item 6.
Add the brush in the screw rod. |
|
纖維纏繞 Screw rod is winded by fiber |
|
|