LFU032外吸式轉籠濾塵器主要用于分離空氣中細小塵雜的過濾設備。它可以廣泛應用于各類紡織廠各工序含塵空氣的第二級精過濾,和各車間空調系統的回風過濾。
整機由轉籠筒體、傳動吸嘴部件、墻板機架三大部分組成。需安裝在密閉的空間內。通過外部風機的抽吸作用,含塵空氣從轉籠外向內流動,塵雜截留在筒體表面濾料上,塑料吸嘴端部與轉籠筒體表面相接觸,由往復絲杠帶動,左右往復,一端與固定吸風管相通,在固定吸風管尾端通過管道與集塵風機入口相連,使吸嘴能周期性的逐點吸清濾料表面的塵雜,潔凈空氣則通過轉籠從敞開端流出,通過風機排放或進入空調室處理。
當外吸式轉籠濾塵器用于紡織廠清棉、梳棉、廢棉等工序含塵空氣過濾時,只能作為第二級精過濾之用,需同時配備相應的第一級過濾設備(如自吸式回風過濾器等),含塵空氣先經第一級過濾設備,再進入本機。此時濾料可以選用長毛絨、針織絨或無紡布。
LFU032 model external suction rotary drum filter is mainly used for separation of air and dust particles, which is widely applied in the secondary further dusted air filtration of various processes and return air filtration of air conditioning system in textile plants.
The whole filter consists of rotary drum, drive suction nozzle and wallboard frame. Filter should be installed in closed space. By suction effect of external fan, dusted air flows into rotary drum. Dusts and other impurities are filtered and left on filtering material of rotary drum screen surface. One end of plastic suction nozzle terminals, droved by traverse guide screw to make reciprocating motion, is connected to screen surface. The other end is connected to fixed air suction tube. The outlet of air suction tube is connected to the inlet of dust collecting fan, which is used for collecting dust and impurities on screen surface. After the filtering process, clean air runs into air conditioning chamber through the open end of rotary drum or sets free by fan.
When external suction rotary drum filter is applied for filtering of picking, combing and processing waste cotton, it can be used for secondary further filter only, and coupled with filter devices such as self-suction return air filter for primary filtering. Flush, knitting or non-woven fabric can be used as filtering material.
常用規格: Specifications
直徑D=Φ2500、Φ3000(mm)
長度L=1700、3400、5100(mm)
主要配置:Main configuration
傳動:網筒由0.75Kw擺線針輪減速器,皮帶傳動;吸口由絲杠往復傳動
過濾材料:長毛絨/不銹鋼絲網
墻板:2mm鍍鋅板或冷板噴涂;網筒:2mm沖孔網板顏色:支架噴涂灰色或藍色,其余噴涂米色,鍍鋅板不噴涂
Transmission: net drum is driven by 0.75KW Cycloidal Pin Wheel Speed Reducer, belt transmission, suction moves back and forth driven by guide screw.
Filter material: Plush/ stainless steel net.
Wallboard: 2mm thickness galvanizing steel sheet or cold rolled steel sheet with coating. Net drum: 2mm piecing net sheet, color: grey or blue for brackets, others beige. No color painting for galvanizing sheet.
外吸式轉籠濾塵器規格參數 Main specification and technical parameters:
|
規格 |
中心高Center Height H |
墻板Wall Board |
過濾面積 |
吸嘴周期 |
預留孔洞 |
外形尺寸 |
最小安裝 空間Min. Assembly space |
整機重量 |
|
150/170 |
1140 |
1930x2280 |
5.70 |
10 |
1900x2300 |
2450×1980×2280 |
2800x2600 |
565 |
|
150/340 |
11.10 |
4240×1980×2280 |
2800x4300 |
610 |
||||
|
150/510 |
17.10 |
5940×1980×2280 |
2800x6000 |
680 |
||||
|
200/170 |
1300 |
2400x2600 |
7.60 |
13.5 |
2400x2600 |
2540×2590×2590 |
3200x2600 |
585 |
|
200/340 |
15.20 |
4240×2590×2590 |
3200x4300 |
710 |
||||
|
200/510 |
22.80 |
5940×2590×2590 |
3200x6000 |
830 |
||||
|
250/170 |
1520 |
2890x3040 |
9.50 |
16.5 |
2800x3000 |
2540×2890×3040 |
3600x2600 |
635 |
|
250/340 |
19.00 |
4240×2890×3040 |
3600x4300 |
770 |
||||
|
250/510 |
28.50 |
5940×2890×3040 |
3600x6000 |
900 |
||||
|
300/170 |
1749 |
3346x3498 |
11.40 |
20 |
3300x3400 |
2550×3350×3540 |
4000x2600 |
685 |
|
300/340 |
22.80 |
4250×3350×3540 |
4000x4300 |
840 |
||||
|
300/510 |
34.20 |
5950×3350×3540 |
4000x6000 |
990 |

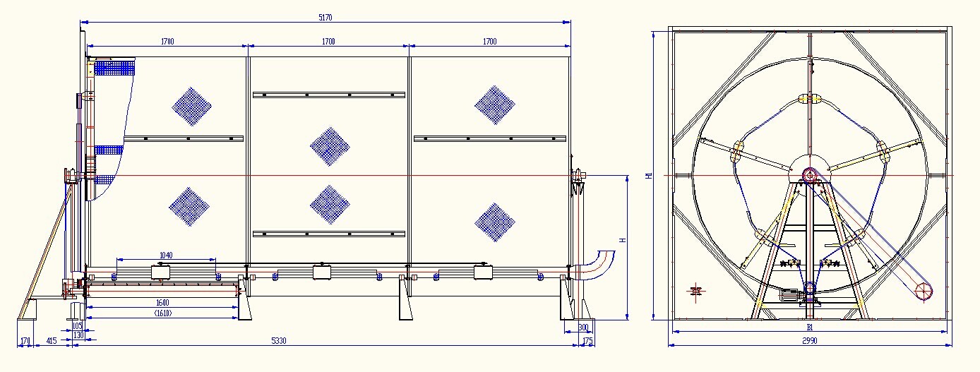
圖六 LFU032外吸式轉籠濾塵器外形圖
Sketch 6 Outline drawing of LFU model external suction rotary drum filter
1、轉籠筒體 rotary drum 2、壓板 pressure pad 3、軸承 bearing 4、轉籠皮帶輪 rotary belt pulley
5、撐架 gibbet 6、往復絲杠 traverse guide screw 7、往復導軌/往復滑車/吸嘴traverse guide rail/pulley/suction
nozzle 8、固定吸風管 fixed suction tube 9、吸風口 suction inlet 10、立柱 vertical prop 11、軸承 bearing
12、墻板 wall board 13、傳動平皮帶flat belt drive 14、減速器 decelerator 15、漲緊輪 tensioner
16、活絡三角帶laminated v-belt 17、絲杠皮帶輪guide screw belt pulley
處理風量、濾料選用表 Air capacity & filter material selecting list:

處理風量與機器使用場合和生產品種有關,如被過濾空氣的含塵濃度越大,則處理風量越小,客戶訂貨時應根據實際情況按上表數據正確選型。
Selection of air capacity depends on specific occasion in which the device is applied and the products variety. Higher concentration of dust in the air requires lower air capacity. Clients can choose appropriate specifications based on practical situations.
5、安裝要求: Assembly requirements:
最小安裝空間見前表格。安裝地基平整,預留空洞位置尺寸準確。
Minimum assembly space please see aforementioned figure. Smooth foundation, correct position of pre-opened holes.
6、檢驗標準: Inspection Criteria
整機焊接部位焊接平整,無毛刺。顏色噴涂均勻,無色差。
前后支架中心軸與墻體垂直,前后中心高誤差≤±5mm。轉籠安裝牢固,網板無變形,轉籠圓整度≤±3mm。墻板與墻體無間隙,墻板與筒體無間隙,墻板垂直度≤±5mm。
減速器轉動平穩,無異響。減速器帶輪槽與網筒帶輪槽位于同一平面,平皮帶傳動時無左右滑動,不與槽邊摩擦。轉籠旋轉方向正確。絲杠傳動平穩,吸口與網面間距均勻。
集塵管道連接順暢,彎頭少。
長毛絨或不銹鋼絲網包覆緊密,網面無松動脫殼,每節兩端抱箍抱緊,抱箍接頭不與吸口摩擦。長毛絨的毛絨方向安裝準確。
Sooth welding everywhere, no burrs. Even painting, no color aberration.
Center line of front bracket and rear bracket should be vertical to the wall, height error along the center line should be less than ±5mm.
Speed Decelerator runs smoothly, no abnormal noise. Pulley groove of decelerator should be in the same horizon of rotary drum pulley. No right and left side slippery of flat belt transmission, no friction with groove sides. Correct rotating direction. Smooth running of guide screw, uniform gaps between suction and net sheet surface.
Smooth connection of dust collection pipes, less bends.
7、外形簡圖及土建條件圖 Outer figure and construction requirements:

外形圖 Outer Figure

安裝最小空間及預留孔洞 Min. Assembly Space and Pre-opened hole